Betriebsinformationen

SPS Lage

Hineinzoomen für die exakt Location
 

Betriebsinformationen

SPS Schulgelände

Bereichskennzeichnungen für Instandhaltung, Reparaturen und Projekte.
SPS_LageB_v1
Betriebsinformationen

SPS Hotelbereich (Südflügel)

Grundriss um -90° gedreht, Nordrichtung links.
SPS_HEG_v2
SPS_HOG_v1
Spreewaldschule

Zimmer und Bereiche

Zimmerabbildungen Stand 21.10.2024 (No frills/keine Ausstattung)
Erdgeschoss: Zimmer 0 Zimmer 1 Zimmer 2 Zimmer 3 Zimmer 4 Zimmer 5 Zimmer 6 Zimmer 7 Zimmer 16
Obergeschoss: Zimmer 8 Zimmer 9 Zimmer 10 Zimmer 11 Zimmer 12 Zimmer 13 Zimmer 14 Zimmer 15
Andere Bereiche: Bildergalerie Oktober 2024
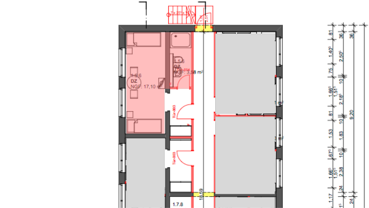
Zimmer 6


Zimmer 6

Größe: 22 qm/brutto Kategorie: Zweibettzimmer Etage: EG Seite: Nord Belegung: 1, 2
Strom: 220V/500A max. Fenster: Heizkörper: Schlüssel: Brandschutz: WLAN*:


Bemerkungen

Am Ende des Korridors, ruhiges Zimmer. (Tür)


Hoteleinrichtung 2021

Kingsize-Bett, Arbeitstisch, Tischlampe, HD-TV, Sat-TV, Heizung im Bad, Bad/Dusche/WC, Insektenschutz, WLAN


________
(*) Fakultativ: WLAN bis zu 256 Mbits, Wi7, 2,4 und 5 GHz Grundriss Etage EG Geländeplan Status: Betriebsfähig

Informationen & Beratung

Kontakt

Für alle Ihre Fragen bezüglich des Objekts "Spreewaldschule" stehen wir Ihnen zur Verfügung. Sie können auch unser Online-Kontaktformular nutzen, um uns eine detaillierte Anfrage (u.a mit einem Besuchstermin) zu senden. Wir danken Ihnen für Ihr Interesse.

Hotelkontor GmbH

Jean Laffin

E-Mail Taube


Spreewaldschule

Ali Mikkael Gültekin

E-Mail Telefon WhatsApp

Ihre Nachricht an uns

Kontaktformular


Kontaktformular
Rückruf
Captcha

_________

Seitenanfang - Copyright © 2019-2025 - Hotel Spreewaldschule - Alle Rechte vorbehalten